A幢-2601
1379人访问
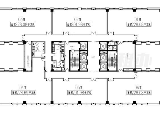
1385.32
m²
1.9
元/m².天
毛坯
得房率65%
7.9万元/月
可分割
基本信息
房源朝向:南
空调情况:独立空调
装修情况:毛坯
办公格局:-
支付方式:押2付6
所在大楼-保和中心
查看大楼详情>
地上层数:28层
单层面积:1362.89
层 高:-
电梯数量:5部
车位情况:地下车位500个,300元/个·月
物业情况:滨江物业,6元/㎡·月
大楼配套:食堂,图文店,便利店
查看该大楼全部房源(11套)
预约看房
预约看房
所在位置
查看地图
猜你喜欢
1385.32㎡-保和中心
1.85元/㎡·天
杭州 滨江
1370㎡-初灵大厦
2.60元/㎡·天
杭州 滨江
1370㎡-初灵大厦
2.70元/㎡·天
杭州 滨江
1370㎡-初灵大厦
2.90元/㎡·天
杭州 滨江
立即咨询
预约看房